The room you build will have a far greater impact on sound and video quality than any other single component you can buy or install.
You are about to embark on a new adventure and enjoy the excitement provided by a cinema in your home. This investment in family entertainment should result in many hours of enjoyment with your family, friends and close associates. Much like any other major investment in your home, such as adding a swimming pool, you want to extract the maximum value such addition can supply.
Much like a swimming pool or tennis court, a home cinema is a significant investment that can return the same level of enjoyment. Unlike swimming pools, however, those who sell and install home theaters are not required to be licensed, accredited, trained or credentialed professionals. Yet, many home theaters can require an investment equal to or larger than a swimming pool!
It will come as a surprise to many that a home cinema is a bigger, more complex engineering challenge than that swimming pool. Everything that goes into that room will have an impact on both sound and video quality. Everything … from the colors of finishes, right down to the location and type of air conditioning registers. Surprised? Don’t feel alone.
When you install a swimming pool your contractor must deal with many engineering aspects of the installation from material choices, soil stability, plumbing, drainage, filtering, heating and others. A home theater requires similar attention to detail. This includes room size, room ratios, throw distance, screen brightness, projector location, finishes, lighting, seating, HVAC capacity, and even the method of framing and applying drywall. All of these items can affect usability, image quality and acoustics.
It is not uncommon to see photographs of home theaters that look attractive with the lights on. But when the lights go down and the movie begins the illusion ends. In many cases the cost difference between a nice home theater and a truly outstanding theater is insignificant in the overall scheme of things.
There is one more analogy that should be made before we go on and that analogy is to chocolate. Recall your first experience with chocolate. It was great! It tasted good, it gave pleasure and you enjoyed the experience. As you went through life, you continued to enjoy chocolate and couldn’t imagine how it could possibly get better. Then one day someone attempted to explain how much better it could be. You just didn’t get it. Eventually, you spent the extra 50 cents and tried a piece of imported Belgium chocolate. After that everything that had preceded the experience was not as good as you thought. While someone may have attempted to explain the difference, they couldn’t – it was something you had to experience to understand. The same holds true with home cinemas. Until you experience a properly designed, calibrated and set up theater, you cannot possibly contemplate the improvement in the experience.
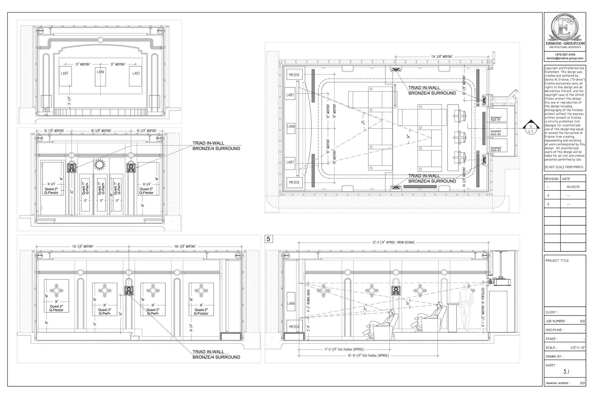
I recall a home owner who was showing off his new “store bought” home theater. He and his family enjoyed it. It was great. After a few moments in the room, I took the liberty of moving the center channel speaker a couple of inches forward. He was shocked. Dialog he thought you weren’t supposed to understand became clear, crisp and understandable.
So what’s the purpose of this document? Plainly it is to encourage you to proceed with the adventure; but, the in the process, to engage experienced, credentialed professional advice throughout the entire project. We are enthusiastic evangelists of home cinemas. At the end of the day, we are less interested in who gets your business than we are in the final result. We want the project done right. We don’t want the owner to be happy, we want the owner to be enthusiastically overwhelmed with the experience. At the same time, we want throw caution into the formula. Just because the pictures of previous work looks nice and just because someone calls themselves a “Home Theater Designer” doesn’t mean they are.
In the following paragraphs, we want to talk about some of the many issues and myths that need to be considered in your project. We want to convince you this is more than five speakers and a TV set. We want to provide you with information that may assist you in finding the appropriate professional, explain how this professional would work with your architect and/or interior designer, and, finally, provide you with some examples of the level of detail you should be getting from your home theater contractor. In the end, if that level of attention to detail is not present, look elsewhere.
The Room as a Component
We treat the room as the basic, if not primary, component of your system. Traditionally, speakers, electronics, screens and projectors are looked upon as the components in your ‘system’. When purchasing individual components, considerable research, listening, shopping, and viewing occurs before a purchase decision is reached. Comparisons made, opinions sought.
We view the room, the room design if you will, as not only the single most important component of your system but also the most ignored and overlooked. It, more than any other item you can purchase, will have the largest single effect on sound and video quality. 80% of the sound you hear, is not coming from your “awesome” speakers… it’s coming from the walls, floor and ceiling! ]
Spending considerable sums on cables, upgraded amplifiers and new electronics will have a less marked affect on sound quality than spending the same amount on proper room design.
There are a couple key issues we’re concerned about with room acoustics: (1) sound transmission in and out of the room; and (2) sound reproduction quality in the room.
Sound Transmission. From the homeowner’s perspective, the desire is to eliminate the
transmission of sound from the theater venue into the remainder of the residence. From the theater designer’s perspective, the focus is preventing sounds outside the theater from entering the room.
Neither of these objectives is mutually exclusive. The reality of the situation, however, is you cannot completely eliminate sound transmission without extraordinary efforts and, in most cases, significant costs. So it becomes a balancing act. Another point, which needs to be made, is those things that affect sound transmission have little effect on room acoustics and vice versa. Just because you have succeeded in isolating the room, does not mean you have good acoustics in the room.
None-the-less, considerable strides can be made in room isolation if the theater designer becomes involved in the project before framing is started – most certainly before sheetrock or drywall is applied. Common means to reduce sound transmission included staggered framing, double sheetrock, mechanical isolation and damping materials. But these techniques alone will not totally solve the matter, and, indeed, could all be for naught if there is no attention to the details. Details such as caulking, sealing electrical outlets and attention to things such as the HVAC system. As a general concept, if the room is tight, you can solve= the problems of sound flanking, but this is not the total solution.
